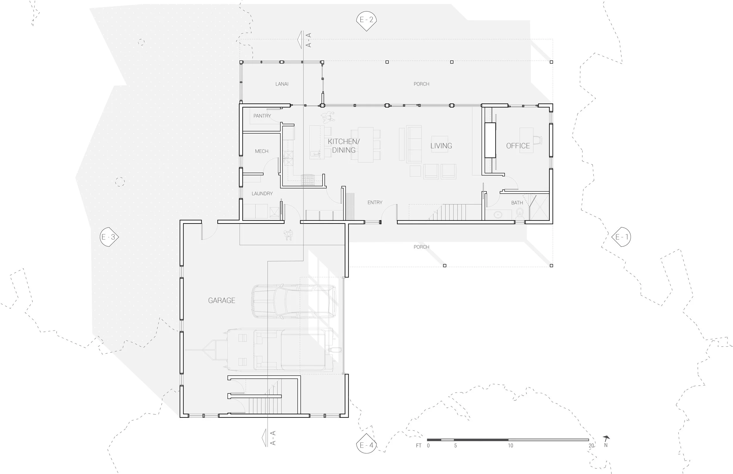
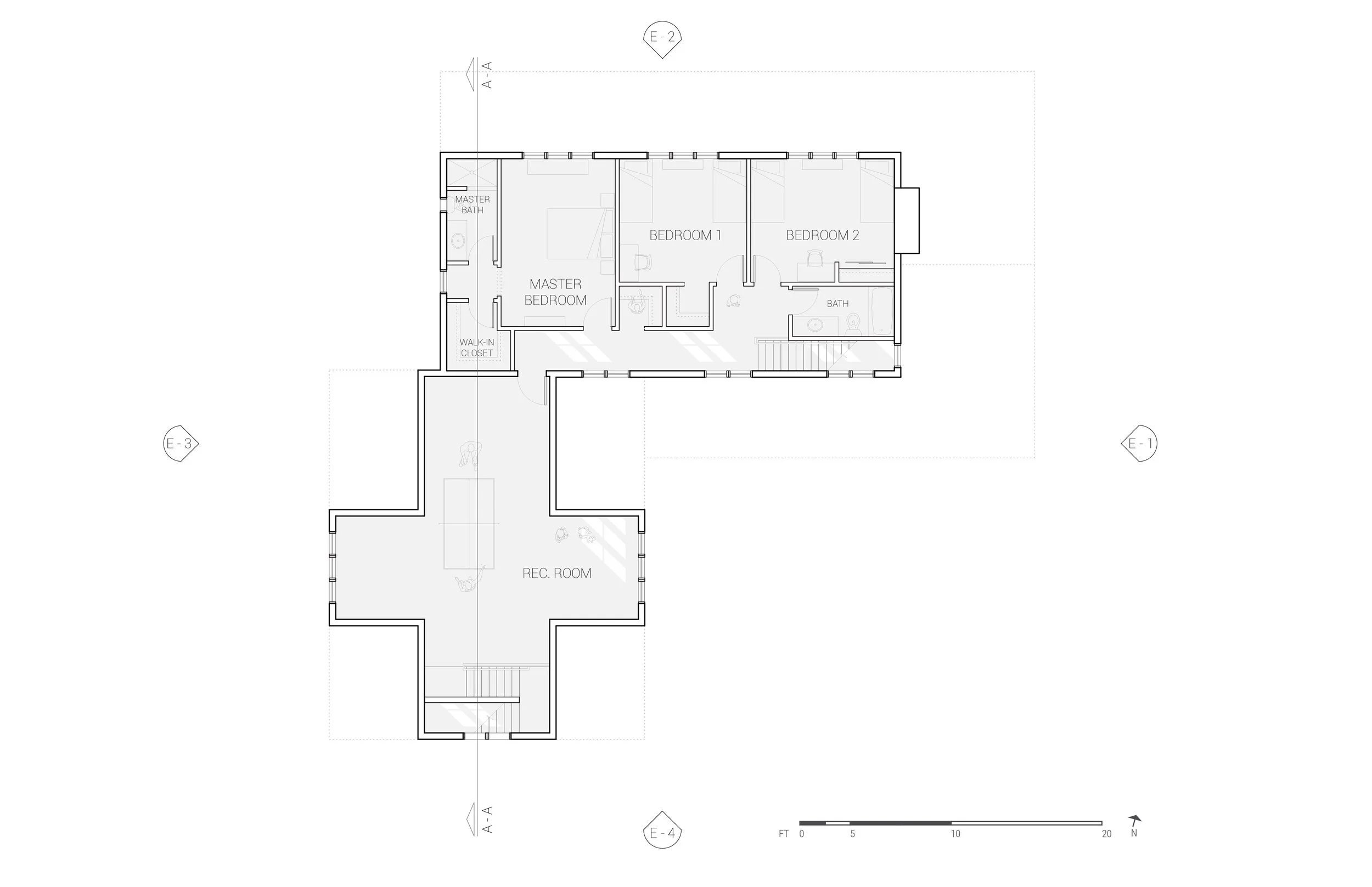
Tipsico Lake House

Rose Township, Michigan

Project Credits

Status Completed
Design Team David Iannuzzi
Photography John D'Angelo
 
 
View Process Gallery
 
Previous
Previous

Motor City Gas